ΔΗΜΟΠΡΑΤΗΣΗ ΚΑΙ ΕΠΙΣΚΕΥΗ ΤΟΥ ΔΗΜΟΤΙΚΟΥ ΣΧΟΛΕΙΟΥ ΟΙΑΣ
ΑΝΑΚΟΙΝΩΣΗ ΤΟΥ ΔΗΜΟΥ
“Δημοπρατείται η επέκταση και η επισκευή του Δημοτικού Σχολείου Οίας
Με ιδιαίτερη ικανοποίηση ανακοινώνουμε ότι την 21.5.2019 θα δημοπρατηθεί το έργο της επέκτασης και επισκευής του Δημοτικού σχολείου της Οίας.
Πρόκειται για ένα σημαντικότατο έργο το οποίο θα λύσει το πρόβλημα της αύξησης του μαθητικού πληθυσμού στην Οία, που έχει γιγαντωθεί λόγω της τεράστιας δημογραφικής έκρηξης που παρατηρείται την τελευταία 5ετία στην Σαντορίνη παρά την οικονομική κρίση στην υπόλοιπη Ελλάδα.
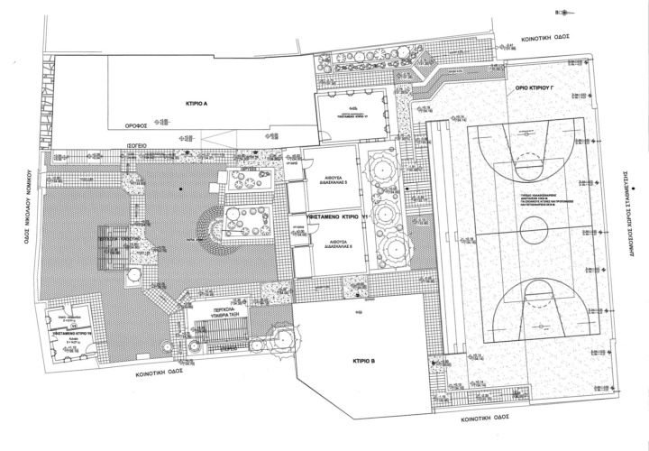
Μετά από δαιδαλώδεις διαδικασίες, συστηματική προεργασία και με προϋπολογισμό 2.050.000,00€ θα δημοπρατηθεί το έργο που θα περιλαμβάνει τις παρακάτω εργασίες:
– Θα χτιστούν 3 νέα κτήρια. Το ένα θα είναι διώροφο με υπόγειο και τα άλλα δύο ισόγεια.
– Θα ενισχυθούν στατικά και θα ανακαινιστούν τα παλιά κτήρια που θα διατηρηθούν.
– Θα ανακατασκευαστεί όλη η αυλή του σχολείου.
– Θα αποκατασταθούν οι κλίσεις του εδάφους στο οικόπεδο και θα ρυθμιστεί η ροή των όμβριων υδάτων.
– Θα ανακατασκευαστεί το γήπεδο του μπάσκετ.
Συνολικά το νέο σχολικό κτήριο θα είναι 1159 m2.
Στο νέο σχολείο θα υπάρχουν:
– αίθουσα πολλαπλών χρήσεων με σκηνή συνολικού εμβαδού 160m2.
– αίθουσα για το μάθημα των καλλιτεχνικών.
– αίθουσα πληροφορικής διαστρωμένη με αντιστατικό τάπητα PVC για την απαγωγή φορτίων στατικού ηλεκτρισμού.
– βιβλιοθήκη.
– αίθουσα ξένων γλωσσών.
– νέες αίθουσες διδασκαλίας.
– κουζίνα εξοπλισμένη για την λειτουργία του ολοήμερου σχολείου.
– υπαίθρια τάξη με σπορείο.
– Νέες τουαλέτες και τουαλέτες AMEA με ειδική πρόσβαση.
Η αποσφράγιση των προσφορών θα γίνει 28 Μαΐου 2019.
Το έργο θα έχει συμβατικό χρόνο υλοποίησης 24 μήνες.









